Appartamento Chiesone 3
Occupazione massima x 4

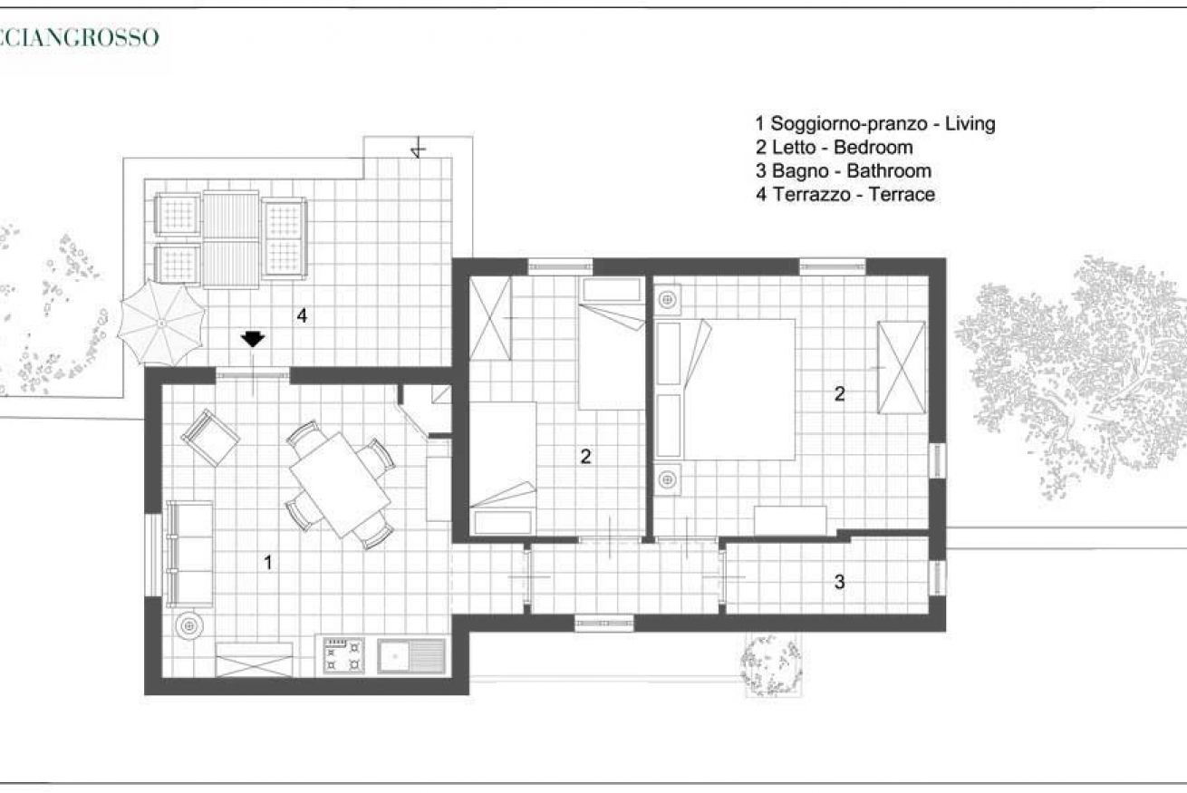
Appartamento indipendente costituito da soggiorno-pranzo con camino e cucina a vista, due camere doppie, bagno con doccia e terrazza panoramica attrezzata con ombrellone, tavolo e sedie.


Galleria

Dotazioni

Climatizzatore
Cucina
TV

Località

Strada Vicinale di Macciano 75 Macciano - Chiusi