Appartamento Miravalle 2
Occupazione massima

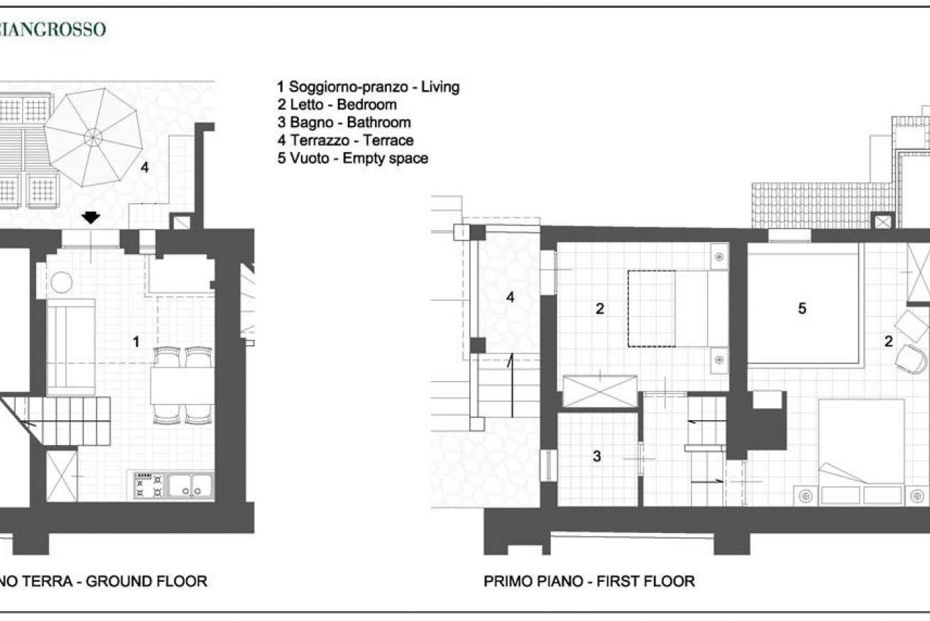
Appartamento su tre livelli: piccolo soggiorno-pranzo con cucina a vista con soppalco con camera matrimoniale, camera con divano letto da 1 piazza e mezzo, bagno con doccia, balcone ed accesso sull’esterno attrezzato con ombrellone, tavolo e sedie.


Galleria

Dotazioni

Climatizzatore
Cucina
TV

Località

Strada Vicinale di Macciano 75 Macciano - Chiusi